Cookies op Dijksman & Partners

Fijn dat je verder wilt lezen. We gebruiken cookies om de website naar behoren te laten werken, om functies voor social media te bieden en om onze website te analyseren. Je gaat akkoord met onze cookies als je onze website blijft gebruiken. Op onze website kun je ook onze Privacyverklaring vinden.

Zonnehof 96, Maisonnette in Nootdorp - Dijksman & Partners

Zonnehof 96, Nootdorp

Kenmerken

Prijs
€ 485.000 k.k.
Inrichting
Gestoffeerd
Wijk
De Venen
Locatie
Beschutte ligging, In woonwijk
Postcode
2632 BH Nootdorp
Woningtype
Maisonnette
Bouwjaar
2005
Soort bouw
Bestaande bouw
Parkeren
Garage, Parkeerplaats, 13m²
Kamers
4
Slaapkamers
3
Badkamers
1
Oppervlakte
109m²
Inhoud
425m³
Oplevering
In overleg

Download Brochure


  • Omschrijving

    LICHTE 4?KAMER MAISONNETTE IN NOOTDORP MET RUIME WOONKAMER, EIGEN PARKEERPLAATS EN UITBREIDINGSOPTIES. SNELLE OPLEVERING MOGELIJK. 2E PARKEERPLAATS OPTIONEEL TE KOOP VOOR € 22.500,-

    - SEE ENGLISH TEXT BELOW -

    In het rustige, groene hofje Zonnehof in de geliefde wijk Nieuweveen ligt deze lichte en verrassend ruime 4?kamer maisonnette, verdeeld over drie woonlagen. De woning beschikt over een royale woonkamer, een ruime woonkeuken, een eigen parkeerplaats in de afgesloten parkeergarage én een multifunctionele videverdieping met diverse uitbreidingsmogelijkheden. Dit type woning komt zelden beschikbaar en biedt een unieke combinatie van licht, ruimte en flexibiliteit.
    De ligging is ideaal: rustig en kindvriendelijk, maar met alle voorzieningen binnen handbereik. Denk aan basisscholen, kinderopvang, winkelcentrum De Parade, de gezellige Dorpsstraat, RandstadRail, NS?station Ypenburg, internationale scholen, recreatiegebieden (Delftse Hout, Dobbeplas, Balijbos) en uitvalswegen naar de A4, A12 en A13.

    Verkoper aan het woord:
    “Wonen in een rustige wijk met dorps karakter, maar alles binnen handbereik. Trein, bioscoop en drie winkelcentra liggen op loop- of fietsafstand. Den Haag, Zoetermeer en Delft centrum zijn binnen 15 minuten bereikbaar met de auto. De snelweg ligt letterlijk om de hoek. Een ideale plek tussen Leidschenveen en Ypenburg voor wie rust én bereikbaarheid zoekt.”

    Indeling:
    Begane grond:
    Centrale, afgesloten entree met brievenbussen, intercom, lift en toegang tot de parkeergarage. De woning beschikt over een eigen parkeerplaats direct naast het trappenhuis. Een tweede parkeerplaats is optioneel te koop voor € 22.500,-. Daarnaast is er een eigen inpandige berging.

    2e Verdieping – Slaapverdieping:
    Entree met hal, meterkast, twee slaapkamers, een aparte wasruimte en de badkamer. De badkamer is volledig betegeld en voorzien van vloerverwarming, ligbad, zwevend toilet en wastafelmeubel met spiegelkast.

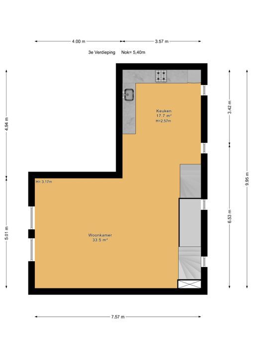
    3e Verdieping – Royale woonverdieping:
    Via de trap bereikt u de lichte en ruime woonkamer van ca. 36 m² met hoge nok en ramen aan beide zijden. De plavuizenvloer met vloerverwarming zorgt voor comfort en een moderne uitstraling.
    De ruime Siematic woonkeuken (ca. 18 m²) is voorzien van een natuurstenen blad en inbouwapparatuur: combi?oven/magnetron, vaatwasser, koelkast, vriezer, inductiekookplaat, spoelbak en vlakscherm afzuigkap. Een ideale plek voor wie van koken en gezellig tafelen houdt.

    4e Verdieping – Vide met uitbreidingsopties:
    Via de open trap in de woonkamer bereikt u de ruime vide: een multifunctionele ruimte die u volledig naar wens kunt benutten. Denk aan:
    - thuiswerkplek
    - kinderslaapkamer
    - hobbyruimte
    - extra slaapkamer (uitbreiding van de vide mogelijk)
    Daarnaast bestaat de mogelijkheid om dakramen te plaatsen, wat zorgt voor extra licht en een gevoel van buitenruimte. De maatvoering, materialen en kleur dienen te voldoen aan de eisen van de VvE. Bij de foto’s zijn sfeerimpressies toegevoegd om de mogelijkheden te laten zien.

    Bijzonderheden:
    - Lichte maisonnette met royale woonkamer
    - Eigen parkeerplaats in afgesloten parkeergarage
    - VvE-bijdrage woning + 1 parkeerplaats: € 245,45 per maand
    - 2e parkeerplaats optioneel te koop voor € 22.500,-
    - Multifunctionele vide met uitbreidingsmogelijkheden
    - Rustige, groene en kindvriendelijke ligging
    - Inpandige berging
    - Mechanische ventilatie recent vernieuwd
    - Gasloos, stadsverwarming
    - Energielabel A
    - Snelle oplevering mogelijk (voorkeur verkoper: eind 2e kwartaal 2026)

    Interesse in dit huis? Neem contact met ons op en/of schakel direct uw eigen NVM-aankoopmakelaar in. Uw NVM-aankoopmakelaar komt op voor uw belang en bespaart u tijd, geld en zorgen. Adressen van collega NVM-aankoopmakelaars in Haaglanden vindt u op Funda.

    Is dit niet uw droomwoning? Wij kijken graag met u mee naar een andere woning. Vraag naar ons speciale actietarief bij full-service aankoopbegeleiding. 

    Toelichtingsclausule NEN2580:
    De Meetinstructie is gebaseerd op de NEN2580. De Meetinstructie is bedoeld om een meer eenduidige manier van meten toe te passen voor het geven van een indicatie van de gebruiksoppervlakte. De Meetinstructie sluit verschillen in meetuitkomsten niet volledig uit, door bijvoorbeeld interpretatieverschillen, afrondingen of bij het uitvoeren van de meting.
    “Deze informatie is door ons met de nodige zorgvuldigheid samengesteld. Onzerzijds wordt echter geen enkele aansprakelijkheid aanvaard voor enige onvolledigheid, onjuistheid of anderszins, dan wel de gevolgen daarvan. Alle opgegeven maten en oppervlakten zijn indicatief.”

    Koopovereenkomst pas rechtsgeldig na ondertekening:
    Een mondelinge overeenstemming tussen de particuliere verkoper en de particuliere koper is niet rechtsgeldig. Met andere woorden: er is geen koop. Er is pas sprake van een rechtsgeldige koop als de particuliere verkoper en de particuliere koper de koopovereenkomst hebben ondertekend. Dit vloeit voort uit artikel 7:2 Burgerlijk Wetboek. Een bevestiging van de mondelinge overeenstemming per e-mail of een toegestuurd concept van de koopovereenkomst wordt overigens niet gezien als een 'ondertekende koopovereenkomst'.

    SEE ENGLISH TEXT BELOW!
    ========================================================================
    BRIGHT 4-ROOM MAISONNETTE IN NOOTDORP WITH SPACIOUS LIVING ROOM, PRIVATE PARKING AND EXPANSION OPTIONS. QUICK DELIVERY POSSIBLE. SECOND PARKING SPACE OPTIONALLY AVAILABLE FOR € 22.500,-

    Located in the quiet and green courtyard Zonnehof in the popular neighbourhood Nieuweveen, this bright and surprisingly spacious 4?room maisonette is spread over three floors. The property features a generous living room, a large kitchen-diner, a private parking space in the secured garage, and a multifunctional mezzanine level with several expansion possibilities. Homes of this type rarely come on the market and offer a unique combination of light, space and flexibility.
    The location is ideal: peaceful and child-friendly, yet close to all amenities. Schools, childcare, shopping centre De Parade, the charming Dorpsstraat, RandstadRail, Ypenburg train station, international schools, and recreational areas (Delftse Hout, Dobbeplas, Balijbos) are all within easy reach. Major highways (A4, A12, A13) are just minutes away.

    Seller’s Note:
    “Living in a quiet neighbourhood with a village feel, yet everything is within reach. Train station, cinema and three shopping centres are all within walking or cycling distance. The centres of The Hague, Zoetermeer and Delft can be reached within 15 minutes by car. The motorway is literally around the corner. An ideal location between Leidschenveen and Ypenburg for anyone seeking both peace and accessibility.”

    Layout:
    Ground Floor:
    Secure central entrance with mailboxes, intercom, lift and access to the parking garage. The property includes a private parking space directly next to the stairwell. A second parking space is available for purchase for € 22,500. There is also a private storage room.

    2nd Floor – Sleeping Level:
    Entrance hall with meter cupboard, two bedrooms, a separate laundry room and the bathroom.
    The bathroom is fully tiled and equipped with underfloor heating, a bathtub, wall-mounted toilet and washbasin with mirror cabinet.

    3rd Floor – Spacious Living Level:
    A staircase leads to the bright and generous living room of approx. 36 m² with high ceilings and windows on both sides. The tiled floor with underfloor heating provides comfort and a modern look.
    The large Siematic kitchen-diner (approx. 18 m²) features a natural stone countertop and built-in appliances: combi oven/microwave, dishwasher, fridge, freezer, induction hob, sink and extractor hood. A perfect space for cooking enthusiasts and social dining.

    4th Floor – Mezzanine with Expansion Options:
    An open staircase in the living room leads to the spacious mezzanine: a multifunctional area that can be adapted to your needs. Ideal as a:
    - home office
    - children’s bedroom
    - hobby room
    - additional bedroom (mezzanine extension possible)
    There is also the option to install roof windows, adding extra daylight and a sense of outdoor space. Dimensions, materials and colours must comply with the VvE (homeowners’ association) requirements. Atmospheric impression images are included with the photos to show the possibilities.

    Key Features:
    - Bright maisonette with spacious living room
    - Private parking space in secured garage
    - Home owners' association fee for the apartment + 1 parking space: € 245.45 per month
    - Second parking space optionally available for € 22,500
    - Multifunctional mezzanine with expansion options
    - Quiet, green and child-friendly location
    - Private storage room
    - Recently renewed mechanical ventilation
    - Gas-free; district heating
    - Energy label A
    - Quick delivery possible (seller’s preference: end of 2nd quarter of 2026)

    Interested in this house? Contact us and/or immediately engage your own NVM purchase broker. Your NVM purchase broker will represent your interests and save you time, money, and worry. Addresses of fellow NVM purchase brokers in Haaglanden can be found on Funda.

    Is this not your dream home? We would be happy to help you find another property. Ask about our special promotional rate for full-service purchase assistance.

    Explanatory clause NEN2580:
    The Measurement Instruction is based on NEN2580. The Measurement Instruction is intended to apply a more unambiguous method of measurement for giving an indication of the usable area. The Measurement Instruction does not completely rule out differences in measurement results, for example due to differences in interpretation, rounding off or when performing the measurement.
    “This information has been compiled by us with the necessary care. However, we accept no liability whatsoever for any incompleteness, inaccuracy, or otherwise, or the consequences thereof. All specified sizes and areas are indicative.”

    Purchase agreement only legally valid after signing:
    A verbal agreement between the private seller and the private buyer is not legally valid. In other words: there is no sale. A sale is only legally valid once the private seller and the private buyer have signed the purchase agreement. This is in accordance with Article 7:2 of the Dutch Civil Code. A confirmation of the verbal agreement by email or a draft purchase agreement sent by post is not considered a ‘signed purchase agreement’.

  • Locatie

    [ { "address": "Zonnehof 96", "zipCode": "2632 BH", "city": "Nootdorp", "lat": 52.0520546, "lng": 4.3969321, "heading": 0, "pitch": 0 } ]
  • Kenmerken

    Prijs
    € 485.000 k.k.
    Inrichting
    Gestoffeerd
    Status
    Beschikbaar
    Oplevering
    In overleg

    Bouw

    Soort appartement
    Maisonnette, Dubbel bovenhuis
    Woonlaag
    2
    Soort bouw
    Bestaande bouw
    Bouwjaar
    2005
    Onderhoud binnen
    Goed
    Onderhoud buiten
    Goed

    Oppervlakten en inhoud

    Woonoppervlakte
    109m²
    Inhoud
    425m³

    Indeling

    Aantal kamers
    4
    Aantal slaapkamers
    3
    Aantal badkamers
    1
    Aantal verdiepingen
    3
    Voorzieningen
    Frans balkon, Glasvezel kabel, Lift, Mechanische ventilatie, TV-Kabel

    Energie

    Energielabel
    A
    Isolatie
    Dakisolatie, Dubbel glas, Muurisolatie, Vloerisolatie
    Warm water
    Stadsverwarming
    Verwarming
    Stadsverwarming, Vloerverwarming gedeeltelijk

    Buitenruimte

    Ligging
    Beschutte ligging, In woonwijk

    Garage

    Soort garage
    Parkeerplaats
    Afmetingen
    13m², 237×536
  • Reageer

    Uw bericht is naar ons verzonden. Wij nemen zo snel mogelijk contact met u op.

    Sorry, we kunnen helaas niet met zekerheid vaststellen of je een mens of een geautomatiseerde bot/spammer bent. Hierdoor kunnen we het formulier dat je hebt ingevuld niet verzenden. Probeer het opnieuw of neem direct contact op met de makelaar via e-mail.

    Er is iets mis gegaan met het versturen van het formulier.
    Controleer of u alle velden (goed) heeft ingevoerd en probeer het nog een keer.

    recaptcha
    reCAPTCHA
    PrivacyTerms
  • Plattegronden