Cookies op Dijksman & Partners

Fijn dat je verder wilt lezen. We gebruiken cookies om de website naar behoren te laten werken, om functies voor social media te bieden en om onze website te analyseren. Je gaat akkoord met onze cookies als je onze website blijft gebruiken. Op onze website kun je ook onze Privacyverklaring vinden.

Zonnehof 96, Maisonnette in Nootdorp - Dijksman & Partners

Zonnehof 96, Nootdorp

Kenmerken

Prijs
€ 498.500 k.k.
Inrichting
Gestoffeerd
Wijk
De Venen
Locatie
Beschutte ligging, In woonwijk
Postcode
2632 BH Nootdorp
Woningtype
Maisonnette
Bouwjaar
2005
Soort bouw
Bestaande bouw
Parkeren
Garage, Parkeerplaats, 13m²
Kamers
4
Slaapkamers
3
Badkamers
1
Oppervlakte
109m²
Inhoud
425m³
Oplevering
In overleg

Download Brochure


  • Omschrijving

    RUIME 4-KAMER MAISONNETTE MET EIGEN PARKEERPLAATS (2E OPTIONEEL TE KOOP), RUSTIG GELEGEN AAN DE ZONNEHOF IN NOOTDORP!

    SEE ENGLISH TEXT BELOW!

    In een rustig hofje in de gewilde, kindvriendelijke wijk 'Nieuweveen' ligt dit fijne 4-kamer appartement op de tweede, derde en vierde verdieping met eigen parkeerplaats en inpandige berging in de ondergelegen parkeergarage. Het complex bestaat uit meerdere hofjes met woningen en appartementen. Het appartement is centraal gelegen en gunstig gesitueerd ten opzichte van basisscholen, kinderopvang, winkelcentrum De Parade, de gezellige dorpskern van Nootdorp (Dorpsstraat), openbaar vervoer (RandstadRail naar Rotterdam en Den Haag, NS-station Ypenburg en meerdere busverbindingen), de internationale scholen, recreatiegebieden Delftse Hout, Dobbeplas en Balijbos en uitvalswegen naar de A4, A12 en A13.

    Verkoper aan het woord:
    "Wonen in een rustige wijk met dorps karakter, maar alles binnen handbereik. Trein, bioscoop en drie winkelcentra liggen op loop- of fietsafstand. Den Haag, Zoetermeer en Delft centrum zijn binnen 15 minuten bereikbaar met de auto. De snelweg ligt letterlijk om de hoek. Een ideale plek tussen Leidschenveen en Ypenburg voor wie rust én bereikbaarheid zoekt."

    Indeling:
    Begane grond:
    Centrale, afgesloten entree met brievenbussen, bellenplateau en intercom. Hal met toegang tot het trappenhuis, de lift en de parkeergarage met de inpandige bergingen. In de parkeergarage is een parkeerplaats vlak naast de toegang tot het trappenhuis. De tweede parkeerplaats (is optioneel ook te koop) ligt aan de overzijde in dezelfde parkeergarage.

    2e Verdieping:
    Via de entree komt u in de hal waar de meterkast is en toegang tot de badkamer, twee slaapkamers en de wasruimte. In de berging is de aansluiting voor de wasmachine en droger. De licht betegelde badkamer is volledig betegeld en voorzien van vloerverwarming, een ligbad, zwevend toilet en wastafelmeubel met twee laden, wastafel en spiegelkast.

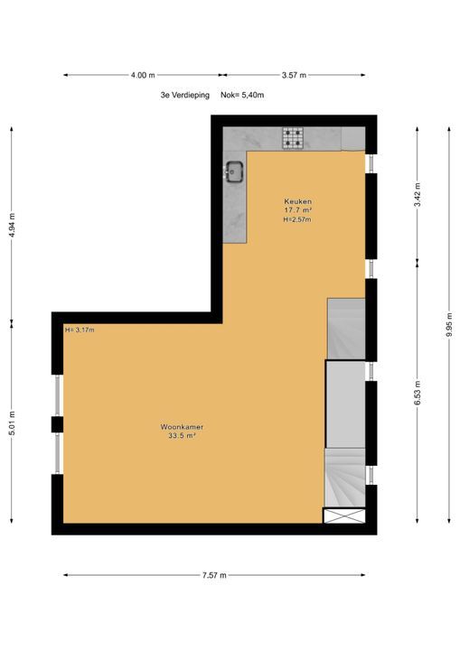
    3e Verdieping:
    Trap vanuit de hal naar de woonverdieping met royale woonkamer van circa 36m2 met hoge nok en ruime lichtinval door ramen aan weerskanten. De woonkamer en keuken zijn voorzien van een plavuizenvloer met vloerverwarming. De Siematic woonkeuken is bijna 18m2 en is voorzien van natuurstenen aanrechtblad en inbouwapparatuur, te weten: spoelbak, combi oven-/magnetron, vaatwasser, koelkast, vriezer, 4 pits inductie kookplaat en een vlakscherm afzuigkap. 

    4e Verdieping:
    Via de open trap in de woonkamer kom je op de 4e verdieping. Dit is een ruime vide met mogelijkheid voor een extra slaapkamer, tv- of werkkamer.

    Bijzonderheden:
    - Rustig en centraal gelegen in zeer kindvriendelijk hofje met veel groen
    - Er is een extra woonlaag en kamer gerealiseerd, bereikbaar middels een vaste trap vanuit de keuken
    - VvE bijdrage voor de woning en 1 parkeerplaats bedraagt € 245,45 per maand
    - De woning wordt geleverd inclusief 1 parkeerplaats, de 2e is optioneel te koop voor € 23.500,-
    - Eigen parkeerplaats(-en) in afgesloten parkeergarage
    - Inpandige berging in de onderbouw
    - De mechanische ventilatie unit is recent vernieuwd
    - De woning is gasloos, warmwater en verwarming middel stadsverwarming
    - Energielabel A
    - Oplevering in overleg (voorkeur verkoper: eind 2e kwartaal 2026) 

    Interesse in dit huis? Neem contact met ons op en/of schakel direct uw eigen NVM-aankoopmakelaar in. Uw NVM-aankoopmakelaar komt op voor uw belang en bespaart u tijd, geld en zorgen. Adressen van collega NVM-aankoopmakelaars in Haaglanden vindt u op Funda.

    Is dit niet uw droomwoning? Wij kijken graag met u mee naar een andere woning. Vraag naar ons speciale actietarief bij full-service aankoopbegeleiding. 

    Toelichtingsclausule NEN2580:
    De Meetinstructie is gebaseerd op de NEN2580. De Meetinstructie is bedoeld om een meer eenduidige manier van meten toe te passen voor het geven van een indicatie van de gebruiksoppervlakte. De Meetinstructie sluit verschillen in meetuitkomsten niet volledig uit, door bijvoorbeeld interpretatieverschillen, afrondingen of bij het uitvoeren van de meting.
    “Deze informatie is door ons met de nodige zorgvuldigheid samengesteld. Onzerzijds wordt echter geen enkele aansprakelijkheid aanvaard voor enige onvolledigheid, onjuistheid of anderszins, dan wel de gevolgen daarvan. Alle opgegeven maten en oppervlakten zijn indicatief.”

    Koopovereenkomst pas rechtsgeldig na ondertekening:
    Een mondelinge overeenstemming tussen de particuliere verkoper en de particuliere koper is niet rechtsgeldig. Met andere woorden: er is geen koop. Er is pas sprake van een rechtsgeldige koop als de particuliere verkoper en de particuliere koper de koopovereenkomst hebben ondertekend. Dit vloeit voort uit artikel 7:2 Burgerlijk Wetboek. Een bevestiging van de mondelinge overeenstemming per e-mail of een toegestuurd concept van de koopovereenkomst wordt overigens niet gezien als een 'ondertekende koopovereenkomst'.

    SEE ENGLISH TEXT BELOW!
    ========================================================================
    SPACIOUS 4-ROOM MAISONETTE WITH PRIVATE PARKING SPACE (2ND OPTIONAL FOR SALE), QUIETLY LOCATED ON THE ZONNEHOF IN NOOTDORP!

    This lovely 4-room apartment is located on the second, third, and fourth floors with private parking and indoor storage in the underground parking garage in a quiet courtyard in the popular, child-friendly neighborhood of ‘Nieuweveen’. The complex consists of several courtyards with houses and apartments. The apartment is centrally located and conveniently situated for primary schools, childcare, De Parade shopping center, the charming village center of Nootdorp (Dorpsstraat), public transport (RandstadRail to Rotterdam and The Hague, Ypenburg railway station, and several bus connections), international schools, the Delftse Hout, Dobbeplas, and Balijbos recreational areas, and access roads to the A4, A12, and A13 motorways.

    The seller says:
    “Living in a quiet neighborhood with a village character, but with everything within easy reach. The train station, cinema, and three shopping centers are within walking or cycling distance. The Hague, Zoetermeer, and Delft city center are less than 15 minutes away by car. The highway is literally around the corner. An ideal location between Leidschenveen and Ypenburg for those seeking peace and quiet as well as accessibility.”

    Layout:
    Ground floor:
    Central, enclosed entrance with mailboxes, doorbells, and intercom. Hall with access to the staircase, elevator, and parking garage with indoor storage rooms. In the parking garage, there is a parking space right next to the entrance to the staircase. The second parking space (also available for sale) is located on the other side of the same parking garage.

    2nd floor:
    The entrance leads to the hall with the meter cupboard and access to the bathroom, two bedrooms, and the laundry room. The storage room has connections for a washing machine and dryer. The brightly tiled bathroom is fully tiled and equipped with underfloor heating, a bathtub, a wall-mounted toilet, and a vanity unit with two drawers, a sink, and a mirror cabinet.

    3rd floor:
    Stairs from the hall lead to the living area with a spacious living room of approximately 36m2 with high ceilings and plenty of light through windows on both sides. The living room and kitchen have tiled floors with underfloor heating. The Siematic kitchen is almost 18m2 and has a natural stone countertop and built-in appliances, namely: sink, combi oven/microwave, dishwasher, refrigerator, freezer, 4-burner induction hob, and a flat screen extractor hood.

    4th Floor:
    The open staircase in the living room leads to the 4th floor. This is a spacious loft with the possibility for an extra bedroom, TV room, or study.

    Details:
    - Quiet and centrally located in a very child-friendly courtyard with lots of greenery
    - An extra floor and room have been created, accessible via a fixed staircase from the kitchen
    - Homeowners' association contribution for the home and 1 parking space is €245.45 per month
    - The home comes with 1 parking space, the 2nd is available for purchase for €23,500
    - Private parking space(s) in a closed parking garage
    - Indoor storage room in the basement
    - The mechanical ventilation unit has recently been renewed
    - The property is gas-free, with hot water and heating provided by district heating
    - Energy label A
    - Delivery in consultation (seller's preference: end of the second quarter of 2026)

    Interested in this house? Contact us and/or immediately engage your own NVM purchase broker. Your NVM purchase broker will represent your interests and save you time, money, and worry. Addresses of fellow NVM purchase brokers in Haaglanden can be found on Funda.

    Is this not your dream home? We would be happy to help you find another property. Ask about our special promotional rate for full-service purchase assistance.

    Explanatory clause NEN2580:
    The Measurement Instruction is based on NEN2580. The Measurement Instruction is intended to apply a more unambiguous method of measurement for giving an indication of the usable area. The Measurement Instruction does not completely rule out differences in measurement results, for example due to differences in interpretation, rounding off or when performing the measurement.
    “This information has been compiled by us with the necessary care. However, we accept no liability whatsoever for any incompleteness, inaccuracy, or otherwise, or the consequences thereof. All specified sizes and areas are indicative.”

    Purchase agreement only legally valid after signing:
    A verbal agreement between the private seller and the private buyer is not legally valid. In other words: there is no sale. A sale is only legally valid once the private seller and the private buyer have signed the purchase agreement. This is in accordance with Article 7:2 of the Dutch Civil Code. A confirmation of the verbal agreement by email or a draft purchase agreement sent by post is not considered a ‘signed purchase agreement’.

  • Locatie

    [ { "address": "Zonnehof 96", "zipCode": "2632 BH", "city": "Nootdorp", "lat": 52.0520546, "lng": 4.3969321, "heading": 0, "pitch": 0 } ]
  • Kenmerken

    Prijs
    € 498.500 k.k.
    Inrichting
    Gestoffeerd
    Status
    Beschikbaar
    Oplevering
    In overleg

    Bouw

    Soort appartement
    Maisonnette, Dubbel bovenhuis
    Woonlaag
    2
    Soort bouw
    Bestaande bouw
    Bouwjaar
    2005
    Onderhoud binnen
    Goed
    Onderhoud buiten
    Goed

    Oppervlakten en inhoud

    Woonoppervlakte
    109m²
    Inhoud
    425m³

    Indeling

    Aantal kamers
    4
    Aantal slaapkamers
    3
    Aantal badkamers
    1
    Aantal verdiepingen
    3
    Voorzieningen
    Frans balkon, Glasvezel kabel, Lift, Mechanische ventilatie, TV-Kabel

    Energie

    Energielabel
    A
    Isolatie
    Dakisolatie, Dubbel glas, Muurisolatie, Vloerisolatie
    Warm water
    Stadsverwarming
    Verwarming
    Stadsverwarming, Vloerverwarming gedeeltelijk

    Buitenruimte

    Ligging
    Beschutte ligging, In woonwijk

    Garage

    Soort garage
    Parkeerplaats
    Afmetingen
    13m², 237×536
  • Reageer

    Uw bericht is naar ons verzonden. Wij nemen zo snel mogelijk contact met u op.

    Sorry, we kunnen helaas niet met zekerheid vaststellen of je een mens of een geautomatiseerde bot/spammer bent. Hierdoor kunnen we het formulier dat je hebt ingevuld niet verzenden. Probeer het opnieuw of neem direct contact op met de makelaar via e-mail.

    Er is iets mis gegaan met het versturen van het formulier.
    Controleer of u alle velden (goed) heeft ingevoerd en probeer het nog een keer.

    recaptcha
    reCAPTCHA
    PrivacyTerms
  • Plattegronden