Cookies op Dijksman & Partners

Fijn dat je verder wilt lezen. We gebruiken cookies om de website naar behoren te laten werken, om functies voor social media te bieden en om onze website te analyseren. Je gaat akkoord met onze cookies als je onze website blijft gebruiken. Op onze website kun je ook onze Privacyverklaring vinden.

Sportparkweg 56, Tussenwoning in Nootdorp - Dijksman & Partners

Sportparkweg 56, Nootdorp

Kenmerken

Onder bod
Prijs
€ 519.000 k.k.
Wijk
De Venen
Locatie
In centrum, In woonwijk
Postcode
2632 EN Nootdorp
Woningtype
Tussenwoning
Bouwjaar
2004
Soort bouw
Bestaande bouw
Tuin
Ja
Parkeren
Garage, Parkeerplaats
Kamers
4
Slaapkamers
3
Badkamers
1
Oppervlakte
115m²
Perceel
94m²
Inhoud
432m³
Oplevering
In overleg

Download Brochure


  • Omschrijving

    4-KAMER EENGEZINSWONING IN HET LEVENDIGE CENTRUM VAN NOOTDORP

    SEE ENGLISH TEXT BELOW!

    Deze woning ligt op een fantastische locatie in Nootdorp in de directe omgeving vind je meerdere scholen, kinderdagverblijven en naschoolse opvang, wat dit huis ideaal maakt voor gezinnen. Binnen een minuut wandel je naar winkelcentrum De Parade voor je dagelijkse boodschappen of een gezellig kopje koffie. Ook het openbaar vervoer is op loopafstand en de uitvalswegen A4, A12 en A13 zijn snel bereikbaar – zo ben je binnen no-time in Den Haag, Rotterdam, Delft of Zoetermeer. Deze ruime 115 m², aantrekkelijke 4-kamer eengezinswoning met zonnige achtertuin en aangebouwde berging. Bij de woning hoort een eigen parkeerplaats, die separaat te koop is (€ 20.000,- k.k.). De woning is volledig geïsoleerd (energielabel A) en biedt wooncomfort verdeeld over drie verdiepingen.

    Indeling:
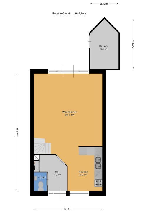
    Begane grond: 
    Entree/hal met meterkast. Toiletruimte met fonteintje. Ruime woonkamer met grote raampartijen en een open keuken in L-opstelling, voorzien van inbouwapparatuur. Vanuit de woonkamer stap je zo de zonnige achtertuin in, met achterom en stenen berging. Open keuken voorzien van moderne inbouwapparatuur; inductiekookplaat, combi-oven, koelkast, vriezer, afzuigkap en vaatwasser.

    1e Verdieping:
    Overloop, twee ruime slaapkamers. Badkamer met douche, ligbad, toilet en wastafelmeubel.

    2e Verdieping:
    Overloop, de tweede verdieping beschikt over een royale 3e kamer die zich uitstekend leent als slaapkamer, werk- of hobbyruimte. Hier bevindt zich ook de wasruimte met aansluitingen voor wasmachine en droger, en mechanische ventilatie.

    Bijzonderheden:
    - Zonnige tuin op het noordwesten, ideaal om te genieten van lange zomeravonden
    - Nabij scholen, sportfaciliteiten en speeltuinen, op loopafstand van Winkelcentrum De Parade
    - Perfecte bereikbaarheid: tram en RandstadRail op loopafstand, binnen 15 minuten in Den Haag, Delft
    - Nabij belangrijke uitvalswegen (A4, A12, A13) en NS-station Ypenburg.
    - Dicht bij natuur- en recreatiegebieden zoals Delftse Hout, de Dobbeplas en het Westerpark.
    - Energielabel A 
    - Isolatie: volledig geïsoleerd, HR++ glas
    - Parkeerplaats is separaat te koop (€ 20.000,- k.k.)
    - De woning is gelegen op eigen grond en bovendien per direct beschikbaar.

    Interesse in dit huis? Neem contact met ons op en/of schakel direct uw eigen NVM-aankoopmakelaar in. Uw NVM-aankoopmakelaar komt op voor uw belang en bespaart u tijd, geld en zorgen. Adressen van collega NVM-aankoopmakelaars in Haaglanden vindt u op Funda.

    Is dit niet uw droomwoning? Wij kijken graag met u mee naar een andere woning. Vraag naar ons speciale actietarief bij full-service aankoopbegeleiding. 

    Toelichtingsclausule NEN2580:
    De Meetinstructie is gebaseerd op de NEN2580. De Meetinstructie is bedoeld om een meer eenduidige manier van meten toe te passen voor het geven van een indicatie van de gebruiksoppervlakte. De Meetinstructie sluit verschillen in meetuitkomsten niet volledig uit, door bijvoorbeeld interpretatieverschillen, afrondingen of bij het uitvoeren van de meting.
    “Deze informatie is door ons met de nodige zorgvuldigheid samengesteld. Onzerzijds wordt echter geen enkele aansprakelijkheid aanvaard voor enige onvolledigheid, onjuistheid of anderszins, dan wel de gevolgen daarvan. Alle opgegeven maten en oppervlakten zijn indicatief.”

    Koopovereenkomst pas rechtsgeldig na ondertekening:
    Een mondelinge overeenstemming tussen de particuliere verkoper en de particuliere koper is niet rechtsgeldig. Met andere woorden: er is geen koop. Er is pas sprake van een rechtsgeldige koop als de particuliere verkoper en de particuliere koper de koopovereenkomst hebben ondertekend. Dit vloeit voort uit artikel 7:2 Burgerlijk Wetboek. Een bevestiging van de mondelinge overeenstemming per e-mail of een toegestuurd concept van de koopovereenkomst wordt overigens niet gezien als een 'ondertekende koopovereenkomst'.
    ------------------------------------------------------------------------------------------------------------------------------------------------------------------
    4-ROOM FAMILY HOME IN THE LIVELY CENTER OF NOOTDORP

    This house is in a fantastic location in Nootdorp, with several schools, daycare centers, and after-school care facilities in the immediate vicinity, making it ideal for families. Within a minute's walk, you can reach the De Parade shopping center for your daily shopping or a nice cup of coffee. Public transportation is also within walking distance, and the A4, A12, and A13 highways are easily accessible, allowing you to reach The Hague, Rotterdam, Delft, or Zoetermeer in no time. This spacious 115 m² attractive 4-room family home has a sunny backyard and attached storage shed. The property includes a private parking space, which is available for purchase separately (€20,000, costs payable by buyer). The house is fully insulated (energy label A) and offers living comfort spread over three floors.

    Layout:
    Ground floor:
    Entrance/hallway with meter cupboard. Toilet with washbasin. Spacious living room with large windows and an open kitchen in an L-shape, equipped with built-in appliances. From the living room, you can step straight into the sunny backyard, with a back entrance and stone shed. Open kitchen equipped with modern built-in appliances: induction hob, combi-oven, refrigerator, freezer, extractor hood, and dishwasher.

    First floor:
    Landing, two spacious bedrooms. Bathroom with shower, bathtub, toilet, and sink.

    Second floor:
    Landing, the second floor has a spacious third room that is ideal as a bedroom, study, or hobby room. Here you will also find the laundry room with connections for a washing machine and dryer, and mechanical ventilation.

    Details:
    - Sunny northwest-facing garden, ideal for enjoying long summer evenings
    - Close to schools, sports facilities, and playgrounds, within walking distance of De Parade shopping center
    - Perfect accessibility: tram and RandstadRail within walking distance, within 15 minutes of The Hague and Delft
    - Close to major highways (A4, A12, A13) and Ypenburg railway station.
    - Close to nature and recreation areas such as Delftse Hout, the Dobbeplas, and Westerpark.
    - Energy label A
    - Insulation: fully insulated, HR++ glass
    - Parking space is available for separate purchase (€20,000, costs payable by buyer)
    - The house is located on private land and is available immediately.

    Interested in this house? Contact us and/or immediately engage your own NVM purchase broker. Your NVM purchase broker will represent your interests and save you time, money, and worry. Addresses of fellow NVM purchase brokers in Haaglanden can be found on Funda.

    Is this not your dream home? We would be happy to help you find another property. Ask about our special promotional rate for full-service purchase assistance.

    Explanatory clause NEN2580:
    The Measurement Instruction is based on NEN2580. The Measurement Instruction is intended to apply a more uniform method of measurement for providing an indication of the usable area. The Measurement Instruction does not completely rule out differences in measurement results, for example due to differences in interpretation, rounding off, or when performing the measurement.
    “This information has been compiled by us with the necessary care. However, we accept no liability whatsoever for any incompleteness, inaccuracy, or otherwise, or the consequences thereof. All specified sizes and areas are indicative.”

    Purchase agreement only legally valid after signing:
    A verbal agreement between the private seller and the private buyer is not legally valid. In other words: there is no sale. A legally valid sale only exists once the private seller and the private buyer have signed the purchase agreement. This follows from Article 7:2 of the Civil Code. A confirmation of the verbal agreement by email or a draft of the purchase agreement sent by post is not considered a ‘signed purchase agreement’.

  • Locatie

    [ { "address": "Sportparkweg 56", "zipCode": "2632 EN", "city": "Nootdorp", "lat": 52.0455272, "lng": 4.3906106, "heading": 0, "pitch": 0 } ]
  • Kenmerken

    Prijs
    € 519.000 k.k.
    Status
    Onder bod
    Oplevering
    In overleg

    Bouw

    Soort woonhuis
    Eengezinswoning, Tussenwoning
    Soort bouw
    Bestaande bouw
    Bouwjaar
    2004
    Onderhoud binnen
    Goed
    Onderhoud buiten
    Goed

    Oppervlakten en inhoud

    Woonoppervlakte
    115m²
    Perceeloppervlakte
    94m²
    Overig oppervlakte
    7m²
    Inhoud
    432m³

    Indeling

    Aantal kamers
    4
    Aantal slaapkamers
    3
    Aantal badkamers
    1
    Aantal verdiepingen
    3
    Voorzieningen
    Frans balkon, Mechanische ventilatie, TV-Kabel

    Energie

    Energielabel
    A
    Isolatie
    Dakisolatie, Dubbel glas, Muurisolatie, Vloerisolatie, Volledig geisoleerd
    Warm water
    Stadsverwarming
    Verwarming
    C.V.-ketel

    Buitenruimte

    Ligging
    In centrum, In woonwijk
    Tuin
    Achtertuin
    Schuur
    Aangebouwd steen
    Faciliteiten schuur
    Voorzien van elektra

    Garage

    Soort garage
    Parkeerplaats
  • Reageer

    Uw bericht is naar ons verzonden. Wij nemen zo snel mogelijk contact met u op.

    Sorry, we kunnen helaas niet met zekerheid vaststellen of je een mens of een geautomatiseerde bot/spammer bent. Hierdoor kunnen we het formulier dat je hebt ingevuld niet verzenden. Probeer het opnieuw of neem direct contact op met de makelaar via e-mail.

    Er is iets mis gegaan met het versturen van het formulier.
    Controleer of u alle velden (goed) heeft ingevoerd en probeer het nog een keer.

    recaptcha
    reCAPTCHA
    PrivacyTerms
  • Plattegronden