Cookies op Dijksman & Partners

Fijn dat je verder wilt lezen. We gebruiken cookies om de website naar behoren te laten werken, om functies voor social media te bieden en om onze website te analyseren. Je gaat akkoord met onze cookies als je onze website blijft gebruiken. Op onze website kun je ook onze Privacyverklaring vinden.

Molenweg 20, Vrijstaande woning in Nootdorp - Dijksman & Partners

Molenweg 20, Nootdorp

Kenmerken

Prijs
€ 725.000 k.k.
Inrichting
Gestoffeerd
Wijk
Nootdorp-Centrum / West
Locatie
Aan het water, In woonwijk, Vrij uitzicht
Postcode
2631 AC Nootdorp
Woningtype
Vrijstaande woning
Bouwjaar
1950
Soort bouw
Bestaande bouw
Tuin
Ja, Achtertuin, Noordwest, 1550×1670cm
Parkeren
Openbaar parkeren
Kamers
4
Slaapkamers
3
Badkamers
1
Oppervlakte
105m²
Perceel
479m²
Inhoud
445m³
Oplevering
In overleg

Download Brochure


  • Omschrijving

    KARAKTERISTIEKE VRIJSTAANDE WONING MET RUIME, ZONNIGE ACHTERTUIN!

    Op een mooie locatie aan de rand van het centrum van Nootdorp en op loopafstand van de Parade en de gezellige Dorpsstraat ligt deze karakteristieke, vrijstaande 50-jaren woning. Dit degelijke familiehuis is goed onderhouden en heeft een heerlijke tuin rondom. De woning heeft nog alle originele details, die zo kenmerkend zijn voor die periode, zoals: paneeldeuren, granitovloeren en glas-in-lood ramen. De woning is uitgevoerd met een sfeervolle doorzonkamer met parketvloer, een gesloten keuken met inbouwapparatuur, 3 slaapkamers en een standaard badkamer en toiletruimte. De woning heeft een woonoppervlakte van 105m2, een royaal perceel van 479m2 is centraal gelegen op loopafstand van basisscholen, kinderopvang en in de nabijheid van winkels, openbaar vervoer (RandstadRail naar Rotterdam / Den Haag, NS-Station en meerdere busverbindingen), de internationale scholen, recreatiegebieden "Delftse Hout" en "Dobbeplas" en uitvalswegen naar de A4, A12 en A13.

    Indeling:
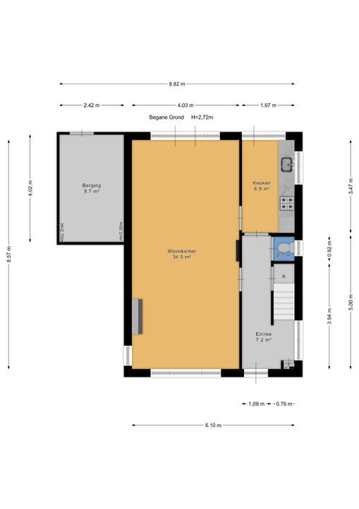
    Begane grond:
    Via een brug kom je in de voortuin. Overdekte entree/hal voorzien van granitovloer, zijraam, meterkast, trapkast met opstelplaats voor CV-Combiketel (Vaillant 2022) en trapopgang. Standaard toiletruimte met toilet en granitovloer. Lichte doorzonkamer van circa 35m2 voorzien van fraaie visgraat parketvloer met bies en plint, gashaard, zijraam, glas-in-lood ramen en twee openslaande deuren naar de zonnige en zeer beschutte achtertuin. Gesloten keuken met granitovloer, zijraam en inbouwapparatuur, te weten: spoelbak, gaskookplaat, RVS - afzuigschouw, combi oven-/magnetron, koel-/vriescombinatie en buitendeur naar de achtertuin.

    1e Verdieping:
    Lichte overloop met vaste trapopgang naar bergvliering. 1 achterslaapkamer met vaste kasten. Standaard badkamer voorzien van douche, toilet, wastafel met spiegelkast en opstelplaats voor wasmachine en droger. 2 voorslaapkamers, beide met vaste kasten.

    Bijzonderheden:
    - Deze karakteristieke 50-jaren woning is degelijk gebouwd en goed onderhouden
    - De woning ligt op loopafstand van het gezellige centrum van Nootdorp en de Parade
    - Naast de woning staat een aangebouwde houten berging
    - De woning wordt verwarmd middels een CV-Combiketel (Vaillant, 2022)
    - Geheel voorzien van houten kozijnen met enkele beglazing
    - De woning heeft veel originele details, zoals paneeldeuren, granitovloeren en glas-in-lood ramen
    - Er wordt een ouderdoms-, asbest- en niet-bewoond clausule opgenomen in de koopovereenkomst
    - Oplevering in overleg, kan snel

    Interesse in dit huis? Neem contact met ons op en/of schakel direct uw eigen NVM-aankoopmakelaar in. Uw NVM-aankoopmakelaar komt op voor uw belang en bespaart u tijd, geld en zorgen. Adressen van collega NVM-aankoopmakelaars in Haaglanden vindt u op Funda.

    Is dit niet uw droomwoning? Wij kijken graag met u mee naar een andere woning. Vraag naar ons speciale actietarief bij full-service aankoopbegeleiding.

    Toelichtingsclausule NEN2580:
    De Meetinstructie is gebaseerd op de NEN2580. De Meetinstructie is bedoeld om een meer eenduidige manier van meten toe te passen voor het geven van een indicatie van de gebruiksoppervlakte. De Meetinstructie sluit verschillen in meetuitkomsten niet volledig uit, door bijvoorbeeld interpretatieverschillen, afrondingen of bij het uitvoeren van de meting.

    “Deze informatie is door ons met de nodige zorgvuldigheid samengesteld. Onzerzijds wordt echter geen enkele aansprakelijkheid aanvaard voor enige onvolledigheid, onjuistheid of anderszins, dan wel de gevolgen daarvan. Alle opgegeven maten en oppervlakten zijn indicatief.”

    Koopovereenkomst pas rechtsgeldig na ondertekening:
    Een mondelinge overeenstemming tussen de particuliere verkoper en de particuliere koper is niet rechtsgeldig. Met andere woorden: er is geen koop. Er is pas sprake van een rechtsgeldige koop als de particuliere verkoper en de particuliere koper de koopovereenkomst hebben ondertekend. Dit vloeit voort uit artikel 7:2 Burgerlijk Wetboek. Een bevestiging van de mondelinge overeenstemming per e-mail of een toegestuurd concept van de koopovereenkomst wordt overigens niet gezien als een 'ondertekende koopovereenkomst'.

  • Locatie

    [ { "address": "Molenweg 20", "zipCode": "2631 AC", "city": "Nootdorp", "lat": 52.0412726, "lng": 4.390268, "heading": 0, "pitch": 0 } ]
  • Kenmerken

    Prijs
    € 725.000 k.k.
    Inrichting
    Gestoffeerd
    Status
    Beschikbaar
    Oplevering
    In overleg

    Bouw

    Soort woonhuis
    Eengezinswoning, Vrijstaande woning
    Soort bouw
    Bestaande bouw
    Bouwjaar
    1950
    Onderhoud binnen
    Goed
    Onderhoud buiten
    Goed

    Oppervlakten en inhoud

    Woonoppervlakte
    105m²
    Perceeloppervlakte
    479m²
    Overig oppervlakte
    14m²
    Inhoud
    445m³

    Indeling

    Aantal kamers
    4
    Aantal slaapkamers
    3
    Aantal badkamers
    1
    Aantal verdiepingen
    3
    Voorzieningen
    Glasvezel kabel, Natuurlijke ventilatie, Rookkanaal, TV-Kabel

    Energie

    Energielabel
    G
    Isolatie
    no_isolation
    Warm water
    C.V.-ketel
    Verwarming
    C.V.-ketel, Gashaard
    Ketel
    Vaillant (2022, Combi-ketel, Eigendom)

    Buitenruimte

    Ligging
    Aan het water, In woonwijk, Vrij uitzicht
    Tuin
    Achtertuin, Voortuin, Zijtuin
    Achtertuin
    Noordwest, 259m², 1550×1670cm
    Schuur
    Aangebouwd hout
    Faciliteiten schuur
    Voorzien van elektra

    Garage

  • Reageer

    Uw bericht is naar ons verzonden. Wij nemen zo snel mogelijk contact met u op.

    Sorry, we kunnen helaas niet met zekerheid vaststellen of je een mens of een geautomatiseerde bot/spammer bent. Hierdoor kunnen we het formulier dat je hebt ingevuld niet verzenden. Probeer het opnieuw of neem direct contact op met de makelaar via e-mail.

    Er is iets mis gegaan met het versturen van het formulier.
    Controleer of u alle velden (goed) heeft ingevoerd en probeer het nog een keer.

    recaptcha
    reCAPTCHA
    PrivacyTerms
  • Plattegronden