Cookies op Dijksman & Partners

Fijn dat je verder wilt lezen. We gebruiken cookies om de website naar behoren te laten werken, om functies voor social media te bieden en om onze website te analyseren. Je gaat akkoord met onze cookies als je onze website blijft gebruiken. Op onze website kun je ook onze Privacyverklaring vinden.

IJsbloem 11, 2-onder-1-kapwoning in Nootdorp - Dijksman & Partners

IJsbloem 11, Nootdorp

Kenmerken

Verkocht
Prijs
€ 1.095.000 k.k.
Servicekosten
€ 10 p.m.
Inrichting
Gestoffeerd
Locatie
Aan rustige weg, In woonwijk, Vrij uitzicht
Postcode
2631 PX Nootdorp
Woningtype
2-onder-1-kapwoning
Bouwjaar
2019
Soort bouw
Bestaande bouw
Tuin
Ja, Achtertuin, Noordoost, 940×1030cm
Parkeren
Garage, Aangebouwd steenParkeerplaats, 22m²
Kamers
6
Slaapkamers
5
Badkamers
2
Oppervlakte
189m²
Perceel
241m²
Inhoud
765m³
Oplevering
In overleg

Download Brochure


  • Omschrijving

    ROYALE LUXE TWEE-ONDER-EEN KAPWONING MET GARAGE, OPRIT EN ZONNIGE ACHTERTUIN!

    Op een rustige locatie in de gewilde, exclusieve kindvriendelijke nieuwbouwwijk 'Het Gildehof' ligt deze verrassend ruime en zeer lichte twee-onder-een-kapwoning met voor- en zonnige achtertuin op het noordoosten. Deze luxueus afgewerkte 6-kamer woning is gasloos gebouwd en voorzien van kunststof kozijnen met triple beglazing, een warmtepomp (bodemwarmte), een warmte-terugwininstallatie (WTW) en 15 pv zonnepanelen. Naast de woning is een eigen oprit en een aangebouwde stenen garage en parkeergelegenheid op het mandelig parkeerterrein aan de achterzijde. De woning is uitgevoerd met een tuingerichte, uitgebouwde woonkamer van 45m2, een ruime woonkeuken met inbouwapparatuur, 5 slaapkamers, twee moderne badkamers en toiletruimte. De woning is vanuit de bouw 2.40 meter uitgebouwd aan de achterzijde, hierdoor is een woonoppervlakte van 189m2 ontstaan. Daarnaast centraal gelegen op loopafstand van basisscholen, kinderopvang en in de nabijheid van winkelcentrum De Parade, de gezellige dorpskernen van Nootdorp (Dorpsstraat en de Parade) en Pijnacker, openbaar vervoer (RandstadRail naar Rotterdam / Den Haag, NS-Station en meerdere busverbindingen), de internationale scholen, recreatiegebieden "Delftse Hout" en "Dobbeplas" en uitvalswegen naar de A4, A12 en A13.

    Verkoper aan het woord:
    "Na jarenlang met z’n zessen vol plezier in de nieuwe wijk Gildehof te hebben gewoond, is het tijd voor een nieuw avontuur. We hebben hier een heerlijk thuis opgebouwd, mede dankzij de fijne buren en de warme, sociale sfeer in de straat, bijvoorbeeld met de gezamenlijke kerstverlichting. De locatie is ideaal: binnen 10 minuten wandel je naar winkelcentrum De Parade voor al je dagelijkse voorzieningen en het OV (metro, tram, bus) ligt ook dichtbij. Volgens ons een unieke kans op een fijn gezinshuis op een centrale toplocatie. Wij gunnen de nieuwe bewoners hier net zo’n mooie tijd als wij hebben gehad!"

    Indeling:
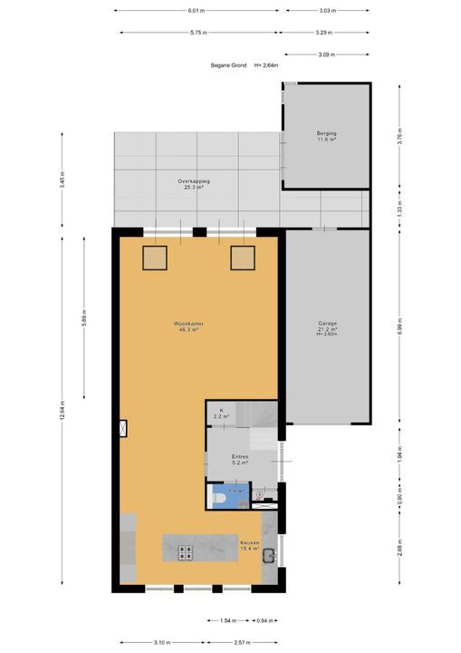
    Begane grond:
    Via de oprit kom je bij de entree van de woning. Ruime, centrale hal met meterkast, ingebouwde garderobe onder de trap, trapopgang naar de eerste verdieping. Moderne, half betegelde toiletruimte voorzien van zwevend toilet met fonteintje. Aan de voorzijde bevindt zich de royale "Studio Paul" Italiaanse woonkeuken "Cesar" type Maxima voorzien van diverse SIEMENS inbouwapparatuur. In het kookeiland zit een 4-pits Siemens inductiekookplaat met afzuigsysteem. In het spoelgedeelte zit de spoelbak en vaatwasser en in de hoge kastenwand bevinden zich een combi/oven/magnetron, koffiemachine en twee koel/vriescombinaties. De tuingerichte uitgebouwde woonkamer met twee lichtkoepels is voorzien van een PVC vloer met vloerverwarming. Middels de twee dubbele openslaande deuren is er toegang naar de zonnige achtertuin op het noordoosten met achterom en deze zijn voorzien van hordeuren. Door de aangebouwde houten tuinhuis van circa 12m2 en de houten veranda van circa 25m met doorzichtige screens (Vendula) is het mogelijk om het hele jaar door uit de wind buiten te zitten. Vanuit de achtertuin heb je een buitendeur naar de aangebouwde stenen garage met elektrische sectionaal deur, die geïsoleerd en op afstand bedienbaar is.

    1e Verdieping:
    Lichte overloop voorzien van zijraam en vaste trapopgang naar 2e verdieping. Aan de achterzijde liggen twee slaapkamers met een PVC vloer en vrij uitzicht. In een van de slaapkamers is een bedstee gemaakt. Moderne, licht betegelde badkamer met 2 ramen, zwevend toilet, ruime douchecabine met glazen wand en deur, thermostaatkraan en hand- en stortdouche, badkamermeubel met dubbele wastafel, spiegel met verlichting, ligbad met thermostaatkraan en handdoekradiator. Lichte voorslaapkamer met 2 ramen en een PVC vloer.

    2e Verdieping:
    Ruime zolder voorzien van twee slaapkamers, een hoge nok (4.01m) en een PVC vloer. De voorslaapkamer heeft een mooi rond kopgevelraam en dakraam. De inpandige berging heeft een opstelplaats voor wasmachine, droger, warmtepomp (Itho Daalderop), een extra boiler, warmte terugwin unit, unit vloerverwarming en omvormer voor de pv zonnepanelen. De 2e licht betegelde badkamer heeft een douche met thermostaatkraan, hand- en stortdouche, badkamermeubel met wastafel, spiegel met verlichting en een handdoekradiator.

    Bijzonderheden:
    - Gelegen in de jonge nieuwbouwwijk Het Gildehof
    - Volledig geïsoleerd en voorzien van ankerloze spouwmuren, dus minimale geluidsoverdracht
    - Er zijn 15 pv zonnepanelen geplaatst, deze leveren jaarlijks circa 2.700 Kwh
    - Deze woning is gasloos, verwarming en warmwatervoorziening middels een warmtepomp. Deze installatie is eigendom en er is een onderhoudscontract van € 57,- per maand bij Klimaatgarant/Itho Daalderop
    - De gehele woning incl. de trappen is voorzien van een fraaie PVC vloer (merk Floorify) met vloerverwarming- en koeling
    - Dak-, muur- en vloerisolatie
    - De gehele woning is voorzien van kunststof kozijnen en triple beglazing
    - Meerdere ramen in de woning zijn voorzien van horren
    - Al het sanitair is van het merk Vileroy & Boch (bad, wastafels, wc) en alle kranen en douches zijn van het merk Grohe.
    - Alle wanden zijn voorzien van Renovlies behang
    - Alle kamers zijn voorzien van bedrade UTP-computeraansluitingen
    - De kosten voor het mandelig parkeerterrein zijn € 120,-- per jaar
    - De maandelijkse kosten voor elektra en water bedragen € 142,-
    - Energielabel A
    - Oplevering in overleg (voorkeur verkoper: eind juli 2026)

    Interesse in dit huis? Neem contact met ons op en/of schakel direct uw eigen NVM-aankoopmakelaar in. Uw NVM-aankoopmakelaar komt op voor uw belang en bespaart u tijd, geld en zorgen. Adressen van collega NVM-aankoopmakelaars in Haaglanden vindt u op Funda.

    Is dit niet uw droomwoning? Wij kijken graag met u mee naar een andere woning. Vraag naar ons speciale actietarief bij full-service aankoopbegeleiding. 

    Toelichtingsclausule NEN2580:
    De Meetinstructie is gebaseerd op de NEN2580. De Meetinstructie is bedoeld om een meer eenduidige manier van meten toe te passen voor het geven van een indicatie van de gebruiksoppervlakte. De Meetinstructie sluit verschillen in meetuitkomsten niet volledig uit, door bijvoorbeeld interpretatieverschillen, afrondingen of bij het uitvoeren van de meting.
    “Deze informatie is door ons met de nodige zorgvuldigheid samengesteld. Onzerzijds wordt echter geen enkele aansprakelijkheid aanvaard voor enige onvolledigheid, onjuistheid of anderszins, dan wel de gevolgen daarvan. Alle opgegeven maten en oppervlakten zijn indicatief.”

    Koopovereenkomst pas rechtsgeldig na ondertekening:
    Een mondelinge overeenstemming tussen de particuliere verkoper en de particuliere koper is niet rechtsgeldig. Met andere woorden: er is geen koop. Er is pas sprake van een rechtsgeldige koop als de particuliere verkoper en de particuliere koper de koopovereenkomst hebben ondertekend. Dit vloeit voort uit artikel 7:2 Burgerlijk Wetboek. Een bevestiging van de mondelinge overeenstemming per e-mail of een toegestuurd concept van de koopovereenkomst wordt overigens niet gezien als een 'ondertekende koopovereenkomst'.

  • Locatie

    [ { "address": "IJsbloem 11", "zipCode": "2631 PX", "city": "Nootdorp", "lat": 52.0454606, "lng": 4.4035308, "heading": 0, "pitch": 0 } ]
  • Kenmerken

    Prijs
    € 1.095.000 k.k.
    Inrichting
    Gestoffeerd
    Servicekosten
    € 10
    Status
    Verkocht
    Oplevering
    In overleg

    Bouw

    Soort woonhuis
    Herenhuis, 2-onder-1-kapwoning
    Soort bouw
    Bestaande bouw
    Bouwjaar
    2019
    Onderhoud binnen
    Uitstekend
    Onderhoud buiten
    Uitstekend

    Oppervlakten en inhoud

    Woonoppervlakte
    189m²
    Perceeloppervlakte
    241m²
    Overig oppervlakte
    21m²
    Inhoud
    765m³

    Indeling

    Aantal kamers
    6
    Aantal slaapkamers
    5
    Aantal badkamers
    2
    Aantal verdiepingen
    3
    Voorzieningen
    Balansventilatie, Buitenzonwering, Dakraam, Domotica, Glasvezel kabel, Schuifpui, TV-Kabel, Zonnecollectoren, Zonnepanelen

    Energie

    Energielabel
    A
    Isolatie
    Dakisolatie, Driedubbel glas, Muurisolatie, Vloerisolatie
    Verwarming
    Vloerverwarming geheel, Warmte Terugwininstallatie, Warmtepomp

    Buitenruimte

    Ligging
    Aan rustige weg, In woonwijk, Vrij uitzicht
    Tuin
    Achtertuin, Voortuin
    Achtertuin
    Noordoost, 97m², 940×1030cm
    Schuur
    Vrijstaand hout
    Faciliteiten schuur
    Voorzien van elektra, Voorzien van verwarming, Voorzien van water

    Garage

    Soort garage
    Aangebouwd steen, Parkeerplaats
    Capaciteit
    2
    Afmetingen
    22m², 309×699
    Voorzieningen
    Voorzien van elektra
  • Reageer

    Uw bericht is naar ons verzonden. Wij nemen zo snel mogelijk contact met u op.

    Sorry, we kunnen helaas niet met zekerheid vaststellen of je een mens of een geautomatiseerde bot/spammer bent. Hierdoor kunnen we het formulier dat je hebt ingevuld niet verzenden. Probeer het opnieuw of neem direct contact op met de makelaar via e-mail.

    Er is iets mis gegaan met het versturen van het formulier.
    Controleer of u alle velden (goed) heeft ingevoerd en probeer het nog een keer.

    recaptcha
    reCAPTCHA
    PrivacyTerms
  • Plattegronden