Cookies op Dijksman & Partners

Fijn dat je verder wilt lezen. We gebruiken cookies om de website naar behoren te laten werken, om functies voor social media te bieden en om onze website te analyseren. Je gaat akkoord met onze cookies als je onze website blijft gebruiken. Op onze website kun je ook onze Privacyverklaring vinden.

Delftsestraatweg 79, Hoekwoning in Delfgauw - Dijksman & Partners

Delftsestraatweg 79, Delfgauw

Kenmerken

Prijs
€ 495.000 k.k.
Inrichting
Gestoffeerd
Wijk
Oud Delfgauw
Locatie
Aan drukke weg, In woonwijk, Vrij uitzicht
Postcode
2645 AA Delfgauw
Woningtype
Hoekwoning
Bouwjaar
1920
Soort bouw
Bestaande bouw
Tuin
Ja, Voortuin, Noord, 700×400cm
Parkeren
Openbaar parkeren
Kamers
4
Slaapkamers
3
Badkamers
1
Oppervlakte
111m²
Perceel
118m²
Inhoud
402m³
Oplevering
In overleg

Download Brochure


  • Omschrijving

    VERRASSEND LEUK WONEN IN DEZE MODERNE, KARARTERISTIEKE DERTIGER JAREN HOEKWONING!

    Deze hoekwoning ligt aan de geliefde Delftsestraatweg nabij Oud Delfgauw en het natuurgebied Bieslandse Bos, gunstig ten opzichte van uitvalswegen en winkelvoorzieningen zoals winkelcentrum Emerald. Het centrum van Delft is op fietsafstand (10 minuten) bereikbaar. De woning is uitgevoerd met een moderne keuken met inbouwapparatuur, een lichte woonkamer, een bijkeuken / berging, 3 slaapkamers, een lichte badkamer en toiletruimte en een kunststof dakkapel op de tweede verdieping. Verder gunstig gesitueerd ten opzichte van Delft, Den Haag en Rotterdam en nabij winkelcentrum, (basis-)scholen, sportvelden, openbaar vervoer, recreatiegebieden en uitvalswegen.

    Indeling:
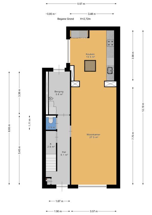
    Begane grond:
    Voortuin. Entree, ruime hal met een granito vloer, meterkast, garderobe, trapkast en gestoffeerde trapopgang. Licht betegelde toiletruimte met zwevend toilet. De woonkamer heeft een laminaatvloer, gestuukte wanden en een mooi vrij uitzicht op de Delftsestraatweg. Aan de achterzijde bevindt zich de moderne hoekkeuken met plavuizen vloer, zijraam, lichtkoepel en diverse inbouwapparatuur, te weten: spoelbak, 4-pits inductie kookplaat, RVS  - afzuigschouw, vaatwasser, koelkast, vriezer, oven, combi oven-/magnetron en heel veel opbergladen. Inpandige berging / bijkeuken met plavuizen vloer, opstelplaats voor wasmachine, droger en CV-Combiketel (AWB Thermo Master VR) en een kunststof buitendeur naar binnenplaatsje.

    1e Verdieping:
    L-vormige lichte overloop met laminaatvloer, zijraam vaste trapopgang en een werkhoekje. Achterslaapkamer met laminaatvloer en buitendeur naar plat dak. De moderne badkamer is compleet en voorzien van een zwevend toilet, een ruime inloopdouche met thermostaatkraan, easydrain, hand- en stortdouche en glazen deuren, een breed badkamermeubel met wastafel en verlichte spiegel, een mechanisch ventilatie en een te openen raam voor natuurlijke ventilatie en daglicht. Ruime voorslaapkamer met laminaatvloer en een mooi vrij uitzicht.

    2e Verdieping:
    Vaste trapopgang naar zolderkamer met laminaatvloer, kunststof dakkapel aan de voorzijde en een Velux-dakraam aan de achterzijde.

    Bijzonderheden:
    - De woning is aan de achterzijde 3 meter uitgebouwd, hierdoor is een ruime woonkeuken ontstaan 
    - Bijna alle wanden zijn met Renovlies behang en net zoals de plafonds gestuukt
    - Geheel voorzien van dubbel glas (m.u.v. 1 bovenlichtje)
    - Verwarming middels een CV-Combiketel (AWB Thermo Master VR) 
    - In de koopakte worden een asbest-, ouderdoms- en niet bewoondclausule opgenomen
    - Er is geen lijst van zaken en geen NVM Vragenlijst ingevuld en beschikbaar
    - Oplevering: in overleg 

    Interesse in dit huis? Neem contact met ons op en/of schakel direct uw eigen NVM-aankoopmakelaar in. Uw NVM-aankoopmakelaar komt op voor uw belang en bespaart u tijd, geld en zorgen. Adressen van collega NVM-aankoopmakelaars in Haaglanden vindt u op Funda.

    Is dit niet uw droomwoning? Wij kijken graag met u mee naar een andere woning. Vraag naar ons speciale actietarief bij full-service aankoopbegeleiding. 

    Toelichtingsclausule NEN2580:
    De Meetinstructie is gebaseerd op de NEN2580. De Meetinstructie is bedoeld om een meer eenduidige manier van meten toe te passen voor het geven van een indicatie van de gebruiksoppervlakte. De Meetinstructie sluit verschillen in meetuitkomsten niet volledig uit, door bijvoorbeeld interpretatieverschillen, afrondingen of bij het uitvoeren van de meting.
    “Deze informatie is door ons met de nodige zorgvuldigheid samengesteld. Onzerzijds wordt echter geen enkele aansprakelijkheid aanvaard voor enige onvolledigheid, onjuistheid of anderszins, dan wel de gevolgen daarvan. Alle opgegeven maten en oppervlakten zijn indicatief.”

    Koopovereenkomst pas rechtsgeldig na ondertekening:
    Een mondelinge overeenstemming tussen de particuliere verkoper en de particuliere koper is niet rechtsgeldig. Met andere woorden: er is geen koop. Er is pas sprake van een rechtsgeldige koop als de particuliere verkoper en de particuliere koper de koopovereenkomst hebben ondertekend. Dit vloeit voort uit artikel 7:2 Burgerlijk Wetboek. Een bevestiging van de mondelinge overeenstemming per e-mail of een toegestuurd concept van de koopovereenkomst wordt overigens niet gezien als een 'ondertekende koopovereenkomst'.

  • Locatie

    [ { "address": "Delftsestraatweg 79", "zipCode": "2645 AA", "city": "Delfgauw", "lat": 52.0106069, "lng": 4.3981798, "heading": 0, "pitch": 0 } ]
  • Kenmerken

    Prijs
    € 495.000 k.k.
    Inrichting
    Gestoffeerd
    Status
    Beschikbaar
    Oplevering
    In overleg

    Bouw

    Soort woonhuis
    Eengezinswoning, Hoekwoning
    Soort bouw
    Bestaande bouw
    Bouwjaar
    1920
    Onderhoud binnen
    Goed
    Onderhoud buiten
    Goed

    Oppervlakten en inhoud

    Woonoppervlakte
    111m²
    Perceeloppervlakte
    118m²
    Inhoud
    402m³

    Indeling

    Aantal kamers
    4
    Aantal slaapkamers
    3
    Aantal badkamers
    1
    Aantal verdiepingen
    3
    Voorzieningen
    Dakraam, Mechanische ventilatie, TV-Kabel

    Energie

    Energielabel
    G
    Isolatie
    Dubbel glas
    Warm water
    C.V.-ketel
    Verwarming
    C.V.-ketel
    Ketel
    AWB Thermo Master VR (Combi-ketel, Eigendom)

    Buitenruimte

    Ligging
    Aan drukke weg, In woonwijk, Vrij uitzicht
    Tuin
    Plaats, Voortuin
    Voortuin
    Noord, 28m², 700×400cm
    Schuur
    Inpandig
    Faciliteiten schuur
    Voorzien van elektra, Voorzien van water

    Garage

  • Reageer

    Uw bericht is naar ons verzonden. Wij nemen zo snel mogelijk contact met u op.

    Sorry, we kunnen helaas niet met zekerheid vaststellen of je een mens of een geautomatiseerde bot/spammer bent. Hierdoor kunnen we het formulier dat je hebt ingevuld niet verzenden. Probeer het opnieuw of neem direct contact op met de makelaar via e-mail.

    Er is iets mis gegaan met het versturen van het formulier.
    Controleer of u alle velden (goed) heeft ingevoerd en probeer het nog een keer.

    recaptcha
    reCAPTCHA
    PrivacyTerms
  • Plattegronden